勤医協サービス付高齢者住宅ふしこの杜

タイトルタイトル(キャッチコピー)

タイトルタイトル(キャッチコピー)

本文本文本文本文本文本文本文本文本文本文本文本文本文本文本文本文本文本文本文本文本文本文本文本文本文本文本文本文本文本文本文本文本文本文本文本文本文本文本文本文本文本文本文本文本文本文本文本文本文本文本文本文本文本文本文本文本文本文本文本文本文本文本文本文本文本文本文本文本文本文本文本文本文本文本文本文本文本文本文本文本文

サービス付高齢者住宅ご利用について

サービス付高齢者住宅ご利用について

勤医協サービス付高齢者住宅「ふしこの杜」では、状況把握(安否確認)、生活相談、食事提供のサービスを行います。

また「訪問介護」「24時間定期巡回型訪問介護看護」の事業所を併設しており、高齢者の方々の生活を支援します。

医療管理が必要な場合は、訪問看護や訪問診療、訪問歯科診療等をご紹介させていただきます。勤医協中央病院、勤医協伏古10条クリニック、勤医協ふしこ歯科の通院にも便利な立地条件です。




事業所概要

事業所概要

住所

〒007-0870

札幌市東区伏古10条2丁目19-8

電話番号011-784-0577
FAX番号011-784-0226

アクセス

アクセス

アクセス


  • 地下鉄東豊線新道東駅⇒中央バス[東78]伏古10条2丁目降車⇒徒歩(約5分)
  • 地下鉄東豊線環状通東駅⇒中央バス[東66]伏古10条3丁目降車⇒徒歩(約5分)

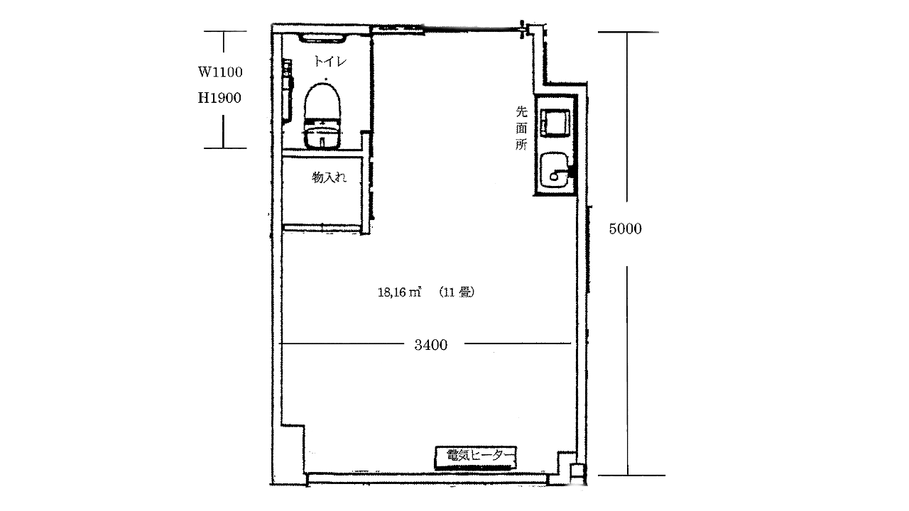
居室概要

居室概要

各居室にはトイレ、ミニクローゼット、洗面所があります。

食堂、浴室は共同利用となります。

利用料金

利用料金

敷金は居住費の1ヶ月分をお預かりします。居住費は前払い、食費は後払いで徴収させていただきます。

【個室】月額利用料金(税込)


居住費38,000円
食費(30日分の場合)45,300円
管理費

27,000円 

生活支援サービス費10,000円

【合計 120,300円】


冬期間暖房費(10月~翌5月)7,000円

【冬期間合計 127,300円】



【2人室】月額利用料金



利用の都度かかる費用

洗濯機(1回)200円

乾燥機(1回)100円

個別利用でかかる費用

個別電気料

個別契約固定電話・携帯電話

食費:1日(3食)1,510円 管理費には施設維持管理費及び水道光熱費が含まれます。
※生活保護や低所得(当法人独自基準)の収入の方へは独自減免制度を設けていますのでご相談ください。

入居時にお持ちになるものの参考例

入居時にお持ちになるものの参考例

  • ベッド
  • 小タンス、衣類を入れるケースなど
  • 室内用物干し、ハンガー
  • テレビ、電話、冷蔵庫(小さいもの)
  • テーブル、いす(必要な場合)
  • お茶道具、電気ポット、(食事の時は食堂に湯呑茶碗またはコップをお持ちください。)
  • 室内用掃除用具、トイレ用掃除用具
  • ゴミ袋、クズかご、お部屋のゴミは当該自治体の指定ゴミ袋をご用意ください。
  • 洗面用具

    ※ガス、ろうそく、線香などの火気の使用は禁止です。
    ※暖簾、カーペットは防炎加工の物を使用していただきますようお願いいたします。